ZEHNFAMILIENHAUS MIT POTENTIAL IN ZENTRALER LAGE VON FREIBURG (V21090)
| Typ: | Mehrfamilienhaus |
|---|---|
| Lage: | Freiburg-Wiehre |
| Grundstück: | 552 qm |
| Wohnfläche-Nutzfläche: | 570 qm |
| Besichtigung: | nach Vereinbarung |
| Preis: | 2.276.000,00 € |
| Alle Objektangaben beruhen auf Mitteilung des Eigentümers, für deren Richtigkeit kann keine Haftung übernommen werden. |
Beschreibung
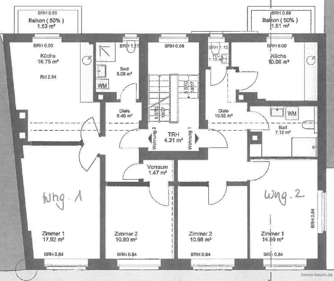
Das zum Verkauf stehende Mehrfamilienhaus wurde im Jahr 1954 errichtet und umfasst insgesamt 10 Einheiten. Das Haus ist auf einem Grundstück von 552 m² errichtet und bietet damit ausreichend Platz für die vorhandenen Nutzungen. Im Erdgeschoss befinden sich zwei vermietete Gewerbeeinheiten mit einer Gesamtfläche von etwa 104 m². Sie sind aufgrund ihrer Lage im Erdgeschoss ideal für verschiedene Geschäftszwecke geeignet, insbesondere für Dienstleister, Einzelhandel oder Büros. Das Gebäude beherbergt zusätzlich zu den Gewerbeeinheiten noch insgesamt acht vermietete Wohnungen, die eine Gesamtwohnfläche von ca. 466 m² umfassen. Die Wohnungen sind im Laufe der Zeit modernisiert worden, dass Treppenhaus ist im klassischen 50er-Jahre Stil gehalten, was den Charme des Hauses ausmacht. Zum Schutz der Privatsphäre der derzeitigen Mieter, verzichten wir auf Innenaufnahmen stehen Ihnen auf Nachfrage für weitere Infos gerne zur Verfügung. Alle Wohnungen sind vermietet und bieten aufgrund der gefragten Lage eine hohe Nachfrage. Für das Haus liegt eine Baugenehmigung zum Ausbau des Dachgeschosses vor, die es ermöglicht eine weitere Wohnung zu schaffen. Zudem ist eine Genehmigung für den Anbau größerer Balkone vorhanden, was den Komfort der Wohnungen erheblich steigern und den Wert des Objekts langfristig erhöhen würde. Dies eröffnet für den neuen Eigentümer die Möglichkeit, die Mietfläche zu erweitern und damit zusätzliche Einnahmen zu generieren. Die Jahresmieteinnahmen des gesamten Hauses belaufen sich aktuell auf 64.029,-- EUR. Die Kombination aus gewerblichen und Wohnflächen sorgt für eine diversifizierte und risikoarme Einkommensstruktur. Für Investoren, die auf der Suche nach einer langfristig stabilen Einkommensquelle in einer der begehrtesten Städte Deutschlands sind, stellt dieses Objekt eine hervorragende Gelegenheit dar.Gesamtflächen: ca. 466 m² (Wohnfläche) + 104 m² (Gewerbefläche) + 206 m² (Nutzfläche)
Grundstücksgröße: 552 m²
Baujahr: 1954
Mieteinnahmen pro Jahr: ca. 64.029,-- EUR
Zwei Gewerbeeinheiten im Erdgeschoss
Acht vermietete Wohnungen
Baugenehmigung für den Ausbau des Dachgeschosses und den Anbau größerer Balkone
Hervorragende Lage in der Nähe der Freiburger Altstadt und öffentlicher Verkehrsmittel
Umgebung: Freiburg-Wiehre
Die Wiehre ist sicher mit das attraktivste Wohnviertel in Freiburg. Nur wenige Gehminuten von der Freiburger Innenstadt findet sich dieses malerische Altstadtviertel.Direkt an die Wiehre grenzt außerdem der Sternwald, eine der grünen Lungen Freiburgs. Die Wiehre bietet eine ganz besondere Lebensqualität: ein vielfältiges geschäftliches und kulturelles Angebot runden das Angebot hervorragend ab.....
< vorheriges Objektzurück zur Suchenächstes Objekt >


